Physical Address
304 North Cardinal St.
Dorchester Center, MA 02124
Physical Address
304 North Cardinal St.
Dorchester Center, MA 02124

Bản vẽ điện nhà cấp 4 là một yếu tố quan trọng, giúp đảm bảo sự an toàn, tiện lợi và tiết kiệm trong quá trình sử dụng điện sinh hoạt. Với thiết kế đơn giản, dễ hiểu, bản vẽ này giúp cho quá trình thi công trở nên dễ dàng hơn, đồng thời giảm thiểu rủi ro sự cố về điện. Nếu bạn đang tìm kiếm mẫu bản vẽ điện nhà cấp 4 đơn giản, cũng như các ký hiệu, hướng dẫn thiết kế, lưu ý quan trọng và cách tải bản vẽ miễn phí, bài viết dưới đây sẽ cung cấp cho bạn đầy đủ thông tin cần thiết để hoàn thiện sơ đồ điện tối ưu cho ngôi nhà của mình.
Bản vẽ điện nhà cấp 4 là tài liệu quan trọng, giúp gia đình hình dung rõ ràng vị trí các thiết bị điện trong nhà. Thông qua bản vẽ, bạn có thể dễ dàng xác định các ổ cắm, công tắc và đèn chiếu sáng được bố trí hợp lý để đảm bảo tính tiện nghi và an toàn cho ngôi nhà.
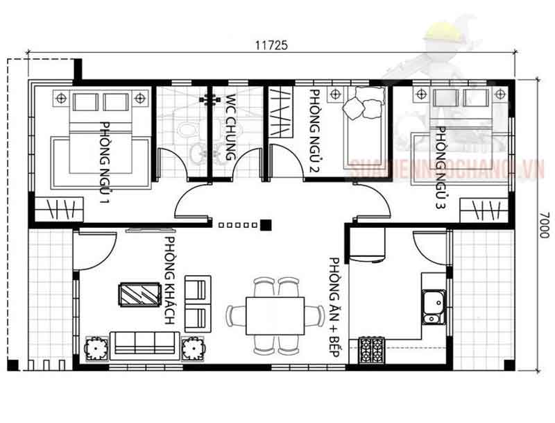
Trong một ngôi nhà cấp 4 tiêu chuẩn, thông thường sẽ có ba phòng ngủ và hai phòng vệ sinh. Với sơ đồ mạch điện đơn giản, bạn có thể dễ dàng hình dung cách đi dây điện và những điểm cần lắp đặt thiết bị. Việc thiết kế sơ đồ mạch điện không chỉ giúp tiết kiệm thời gian thi công mà còn đảm bảo an toàn cho người sử dụng.
Ngoài ra, nhiều người hiện nay cũng ưa chuộng việc áp dụng phương pháp đi dây âm tường. Điều này không chỉ giúp việc bố trí thiết bị gọn gàng hơn mà còn tăng tính thẩm mỹ cho không gian sống. Bản vẽ điện rõ ràng và chi tiết sẽ là một công cụ hữu ích giúp việc lắp đặt diễn ra thuận lợi, tiết kiệm chi phí.

Bản vẽ điện nhà cấp 4 là một tài liệu kỹ thuật quan trọng giúp bạn hình dung rõ ràng về việc bố trí thiết bị điện trong không gian sống của mình. Thông thường, bản vẽ này sẽ bao gồm các phần như tủ điện, hộp phân phối điện, thiết bị sử dụng điện hay phụ tải điện, và ống luồn dây điện hay ghen điện.
Trong mẫu nhà cấp 4 của gia đình cô, sơ đồ mạch điện được thiết kế đơn giản nhưng hiệu quả, với ba phòng ngủ và hai phòng vệ sinh. Bản vẽ này không chỉ giúp bạn dễ dàng hình dung cách đi dây điện mà còn bảo đảm sự an toàn trong quá trình thi công. Đặc biệt, chúng ta cũng có thể tìm thấy những sơ đồ đi dây điện âm tường dễ hiểu, giúp cho thợ điện nhanh chóng hoàn thành công việc.
Những thông tin trong bài viết này còn bổ sung các clip hướng dẫn chọn aptomat và dây dẫn an toàn, rất hữu ích cho những ai muốn tự lắp đặt điện cho ngôi nhà cấp 4 của mình. Hãy tham khảo để có được một ngôi nhà tiện nghi và an toàn nhé!

Bản vẽ điện cho nhà cấp 4 đơn giản là một phần không thể thiếu trong quá trình xây dựng. Một bản vẽ hoàn chỉnh thường sẽ bao gồm tủ điện, hộp phân phối điện, các thiết bị dùng điện hay còn gọi là phụ tải, và hệ thống ống luồn dây điện. Những yếu tố này giúp đảm bảo việc cung cấp điện ổn định và an toàn cho ngôi nhà.
Khi lựa chọn sơ đồ mạch điện cho nhà cấp 4, bạn nên ưu tiên các thiết kế đơn giản, dễ hiểu để thuận tiện cho việc thi công. Đặc biệt, sơ đồ điện âm tường là lựa chọn phổ biến, giúp giấu dây điện gọn gàng và đảm bảo tính thẩm mỹ. Hồ sơ bản vẽ cần được phân tách rõ ràng giữa phần điện và phần nước để tránh nhầm lẫn trong quá trình lắp đặt.
Để vẽ sơ đồ mạch điện, bạn cần xác định vị trí tủ điện, các ổ cắm và đèn chiếu sáng. Đừng quên sử dụng các ký hiệu tiêu chuẩn để người khác có thể dễ dàng hiểu được. Bằng cách này, bạn có thể thực hiện việc đi điện cho nhà cấp 4 một cách đúng kỹ thuật và hiệu quả nhất.

Khi thiết kế bản vẽ điện cho nhà cấp 4, việc hiểu các ký hiệu thiết bị điện là rất quan trọng. Những ký hiệu này không chỉ giúp người sử dụng dễ dàng nhận diện từng loại thiết bị mà còn đảm bảo rằng quá trình lắp đặt diễn ra thuận lợi và chính xác. Ví dụ, ký hiệu chữ “A” thường được sử dụng để chỉ ổ cắm, trong khi “B” là công tắc. Điều này giúp người đọc nhanh chóng nắm bắt được các thiết bị cần thiết trong hệ thống điện.
Ngoài ra, các ký hiệu như “H” cho rơ le nhiệt, “M” cho động cơ, hay “N” cho dây trung tính cũng là những phần không thể thiếu. Những ký hiệu này góp phần giúp cho người thiết kế có thể minh họa rõ ràng các mạch điện, cũng như vị trí lắp đặt của chúng trong sơ đồ mặt bằng. Đặc biệt, ngay cả trong các không gian như nhà vệ sinh, các ký hiệu cho đèn sưởi hay quạt thông gió cũng được thể hiện một cách rõ ràng.
Nắm vững những ký hiệu này là bước đầu thiết yếu để đảm bảo hệ thống điện hoạt động hiệu quả và an toàn. Hy vọng rằng việc hiểu biết về các ký hiệu thiết bị điện này sẽ giúp bạn dễ dàng hơn trong việc đọc và áp dụng các bản vẽ điện.

Bản vẽ điện cho nhà cấp 4 là một phần quan trọng và cần thiết trong quá trình xây dựng. Hồ sơ bản vẽ sẽ được chia thành hai hạng mục chính: bản vẽ phần điện và bản vẽ phần nước. Trong phần điện, tủ điện và hộp phân phối điện đóng vai trò trung tâm, giúp dòng điện được phân bổ tới các thiết bị sử dụng.
Các thiết bị sử dụng điện hay phụ tải điện như đèn, ổ cắm và công tắc sẽ được bố trí hợp lý sao cho phù hợp với nhu cầu sinh hoạt của gia đình. Đặc biệt, trong một ngôi nhà cấp 4 đơn giản, với ba phòng ngủ và hai phòng vệ sinh, việc thiết kế sơ đồ mạch điện trở nên dễ dàng hơn nếu chúng ta biết cách phân chia các khu vực.
Điều này không chỉ giúp cho việc đi dây điện trở nên đơn giản, mà còn đảm bảo an toàn cho toàn bộ hệ thống. Sơ đồ mạch điện cũng chỉ ra các vị trí lắp đặt ổ cắm, công tắc và đèn chiếu sáng một cách trực quan, giúp người xây dựng có cái nhìn tổng thể về hệ thống điện trong nhà.

Khi thiết kế bản vẽ điện cho nhà cấp 4, có một số lưu ý quan trọng cần phải ghi nhớ để đảm bảo an toàn và tiện nghi cho không gian sống. Công tắc đèn đảo chiều nên được đặt cách sàn ít nhất 0.7 mét, điều này không chỉ thuận tiện mà còn giúp tránh tình trạng trầy xước hay va chạm.
Đối với đèn ngủ, vị trí lý tưởng là ở ngay đầu giường, giúp người dùng dễ dàng điều chỉnh ánh sáng vào ban đêm. Bản vẽ điện cần thể hiện rõ các thiết bị như tủ điện, hộp phân phối và các thiết bị sử dụng điện khác. Việc lập sơ đồ kỹ lưỡng từ ban đầu sẽ giúp quá trình thi công diễn ra thuận lợi, tiết kiệm chi phí và giảm thiểu khó khăn khi muốn sửa chữa hay nâng cấp sau này.
Đặc biệt, cần phải phân tích công năng của từng khu vực trong nhà để bố trí các thiết bị điện hợp lý. Sử dụng những thiết bị có độ bền cao cũng là yếu tố quan trọng nhằm đảm bảo hệ thống điện hoạt động ổn định trong suốt thời gian sử dụng.

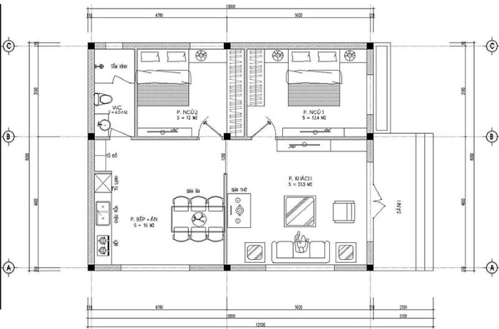
Bạn đang tìm kiếm bản vẽ điện cho nhà cấp 4 đơn giản? Chúng tôi xin giới thiệu một mẫu bản vẽ điện nhà cấp 4 gồm hai phòng ngủ hình chữ L. Bản vẽ này được thiết kế tỉ mỉ, đảm bảo đáp ứng đầy đủ nhu cầu sinh hoạt của gia đình. Bạn có thể tải bản vẽ đầy đủ miễn phí qua liên kết dưới đây.
Trong bản vẽ này, chúng tôi cũng sẽ cung cấp cho bạn sơ đồ mạch điện cho nhà cấp 4 với ba phòng ngủ và hai phòng vệ sinh. Việc đi dây điện được tính toán kỹ lưỡng, giúp dễ dàng lắp đặt và vận hành. Đặc biệt, mạch điện còn được bố trí cho nhà vệ sinh với các thiết bị như đèn sưởi, quạt thông gió và ổ cắm tiện lợi.
Chúng tôi cam kết cung cấp bản vẽ điện âm tường chi tiết, giúp thợ điện thực hiện thi công nhanh chóng và tiết kiệm chi phí. Bản vẽ được thực hiện bằng phần mềm CAD, mang đến cái nhìn rõ ràng về vị trí các thiết bị điện và công suất cần thiết cho từng khu vực trong ngôi nhà. Hãy tham khảo ngay để biến ý tưởng của bạn thành hiện thực!

Hiện nay, việc vẽ sơ đồ đi dây điện cho nhà cấp 4 đang ngày càng trở nên phổ biến, đặc biệt là với những ngôi nhà có cấu trúc đơn giản. Để đảm bảo an toàn và hiệu quả, trước tiên, bạn nên xác định rõ vị trí các thiết bị điện cần lắp đặt như tủ điện, hộp phân phối và thiết bị sử dụng điện.
Tiếp theo, bạn hãy bắt đầu vẽ sơ đồ nguyên lý mạch điện, sử dụng các ký hiệu đúng quy ước. Trong đó, bạn cần chú ý tới các đường dây điện, đảm bảo chúng được vẽ theo hướng ngang và dễ nhìn. Sơ đồ nên bao gồm các thành phần như thiết bị đóng ngắt, ổ điện và công tắc để người thi công dễ dàng nắm bắt được hướng đi của dòng điện.
Cuối cùng, việc kiểm tra lại sơ đồ trước khi lắp đặt là rất quan trọng. Đảm bảo rằng mọi thứ đều chính xác và tại vị trí đã định, giúp bạn tránh được những sự cố không mong muốn trong quá trình thi công. Hãy dành thời gian để thực hiện từng bước một cách khoa học để có một hệ thống điện hoàn hảo cho ngôi nhà của mình.

Sơ đồ mạch điện cho nhà cấp 4 đơn giản gồm ba phòng ngủ và hai phòng vệ sinh rất quan trọng trong việc thiết kế và thi công. Trước tiên, bạn cần có một tủ điện để quản lý nguồn điện, cùng với hộp phân phối điện để chia nguồn tới từng khu vực trong ngôi nhà. Điều này giúp đảm bảo an toàn và thuận tiện trong việc sử dụng.
Ngoài ra, thiết bị điện hay phụ tải điện như đèn, quạt, ổ cắm cũng cần được xác định và bố trí hợp lý. Việc sắp xếp các thiết bị này giúp cho việc sử dụng trở nên dễ dàng và thuận tiện hơn. Đừng quên đến các ống luồn dây điện hoặc ghen điện để bảo vệ và an toàn cho hệ thống điện trong nhà.
Một lưu ý quan trọng là việc xác định vị trí các thiết bị như ổ cắm và công tắc. Việc này không chỉ giúp cho công việc lắp đặt trở nên dễ dàng mà còn đảm bảo tính thẩm mỹ cho không gian sống. Hãy cùng tham khảo những bản vẽ thiết kế để tự tin lắp đặt hệ thống điện cho ngôi nhà của mình nhé!

Trong kết luận, việc thiết kế bản vẽ điện cho nhà cấp 4 đơn giản không chỉ giúp tối ưu hóa không gian mà còn đảm bảo an toàn và hiệu quả trong sử dụng điện năng. Qua việc tìm hiểu các yếu tố cần thiết như vị trí thiết bị, công suất và bố trí dây dẫn, chúng ta có thể tạo ra một hệ thống điện hoạt động ổn định và bền vững. Hướng tới sự phát triển bền vững, việc áp dụng các công nghệ tiết kiệm năng lượng trong thiết kế bản vẽ điện cũng là một xu hướng cần thiết trong tương lai. Hy vọng những gợi ý trong bài viết sẽ giúp bạn có cái nhìn rõ hơn về vấn đề này.