Physical Address
304 North Cardinal St.
Dorchester Center, MA 02124
Physical Address
304 North Cardinal St.
Dorchester Center, MA 02124

Khi nhắc đến những mái ấm quen thuộc trong cuộc sống, nhà cấp 4 luôn chiếm một vị trí đặc biệt trong trái tim mỗi người. Đặc biệt, những ngôi nhà cấp 4 hình chữ L với thiết kế thông minh và tiện nghi ngày càng được ưa chuộng, không chỉ vì tính thẩm mỹ mà còn nhờ vào sự linh hoạt trong không gian sống. Trong bài viết này, chúng ta sẽ cùng khám phá những mẫu bản vẽ nhà cấp 4 hình chữ L đa dạng, từ những ngôi nhà có diện tích 100m2, 80m2 cho đến những thiết kế 2, 3 phòng ngủ hoặc thậm chí có thêm phòng thờ. Bạn sẽ thấy được sự gần gũi, ấm cúng của từng không gian trong mẫu thiết kế này, phù hợp cho cả nông thôn lẫn thành phố. Hãy cùng tôi tìm hiểu nhé!
Nhà cấp 4 chữ L mái thái đang trở thành lựa chọn phổ biến cho nhiều gia đình ở nông thôn Việt Nam. Với thiết kế hình chữ L đặc trưng, ngôi nhà thường được xây dựng trên một diện tích rộng rãi, tạo không gian sống thoải mái cho các thành viên trong gia đình. Mái tôn độ dốc lớn không chỉ giúp thoát nước nhanh mà còn mang lại vẻ đẹp thanh thoát cho ngôi nhà.
Một trong những điểm nổi bật của nhà cấp 4 chữ L là khả năng bố trí linh hoạt từ 2 đến 3 phòng ngủ, đáp ứng nhu cầu của nhiều gia đình. Thiết kế thông minh giúp tạo ra không gian riêng tư nhưng vẫn đảm bảo sự thông thoáng, dễ chịu. Mặt tiền ấn tượng với sân vườn xanh mát là điểm nhấn làm cho ngôi nhà trở nên hài hòa hơn với thiên nhiên.
Ngoài ra, giá cả hợp lý cùng với mô hình thiết kế đơn giản càng làm cho nhà cấp 4 chữ L trở nên hấp dẫn hơn. Đây thực sự là sự lựa chọn lý tưởng cho những ai muốn có một mái ấm bình dị, gần gũi và đầy đủ tiện nghi.

Nhà cấp 4 chữ L diện tích 100m2 đang trở thành lựa chọn phổ biến cho nhiều gia đình Việt. Với thiết kế hiện đại và đơn giản, kiểu nhà này không chỉ đảm bảo tính tiện nghi mà còn tạo cảm giác thoáng đãng. Điểm nổi bật của mẫu nhà này là cấu trúc một tầng với mặt bằng hình chữ L, giúp phân chia không gian sống một cách hợp lý.
Mái thái hoặc mái bằng đều có thể phù hợp cho mẫu nhà chữ L, mang đến vẻ đẹp hài hòa và sang trọng. Phần sân vườn xung quanh cũng là một ưu điểm lớn, tạo ra không gian vui chơi, thư giãn lý tưởng cho cả gia đình. Thông thường, nhà chữ L sẽ gồm 3 phòng ngủ, tách biệt khu vực sinh hoạt chính như phòng khách và khu vực phụ trợ như bếp, nhà vệ sinh.
Với kinh phí hợp lý và thiết kế linh hoạt, nhà cấp 4 chữ L đã trở thành biểu tượng cho những ai yêu thích sự giản dị mà vẫn đầy đủ tiện nghi. Đây thực sự là lựa chọn hoàn hảo dành cho những ai mong muốn xây dựng tổ ấm của riêng mình trong không gian rộng rãi và gần gũi với thiên nhiên.

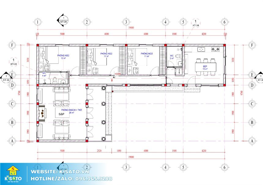
Nhà cấp 4 chữ L 2 phòng ngủ là sự lựa chọn hoàn hảo cho nhiều gia đình Việt Nam, đặc biệt là những cặp vợ chồng trẻ. Với thiết kế thông minh, mẫu nhà này không chỉ tiết kiệm chi phí mà còn đảm bảo công năng sử dụng tối ưu. Diện tích thiết kế thường rơi vào khoảng 120m2, bao gồm một phòng khách kết hợp phòng thờ, hai phòng ngủ (một phòng có WC khép kín) và nhà bếp rộng rãi.
Mái thái cũng là một điểm nhấn nổi bật trong các mẫu nhà cấp 4 chữ L. Nó không chỉ mang lại vẻ đẹp hiện đại mà còn giúp căn nhà thoáng mát, ấm áp hơn. Tại Kakoi, bạn sẽ tìm thấy nhiều lựa chọn dịch vụ, từ xây nhà trọn gói đến thiết kế bản vẽ, giúp bạn dễ dàng hiện thực hóa không gian sống trong mơ của gia đình.
Với mức giá chỉ từ 150.000đ – 200.000đ cho bản vẽ, đây là một khoản đầu tư hợp lý cho một tổ ấm. Nếu bạn đang tìm kiếm một ngôi nhà vừa đẹp vừa tiện nghi, đừng bỏ qua những mẫu thiết kế ấn tượng này nhé!

Mẫu nhà cấp 4 chữ L với 3 phòng ngủ mái Thái đang trở thành xu hướng được nhiều gia đình yêu thích. Thiết kế mái dốc không chỉ mang lại vẻ đẹp thanh thoát, sang trọng mà còn giúp cho việc thoát nước hiệu quả, rất phù hợp với khí hậu Việt Nam.
Các bản vẽ nhà cấp 4 này thường bao gồm một không gian rộng rãi với 1 phòng khách, 1 phòng thờ, phòng bếp ăn và phòng WC, rất thuận tiện cho sinh hoạt hàng ngày. Nhờ diện tích khoảng 100m², những ngôi nhà này đáp ứng đủ nhu cầu của các gia đình nhỏ, đặc biệt là ở nông thôn.
Một ưu điểm lớn của mẫu nhà này là tính tiết kiệm chi phí mà vẫn đảm bảo sự tiện nghi. Bạn có thể sở hữu một ngôi nhà chữ L với kinh phí từ 500 triệu tới dưới 1 tỷ đồng, tùy thuộc vào thiết kế và vật liệu sử dụng. Với bố cục linh hoạt và hợp lý, mẫu nhà cấp 4 chữ L 3 phòng ngủ sẽ là nơi lý tưởng để bạn và gia đình tạo dựng tổ ấm.

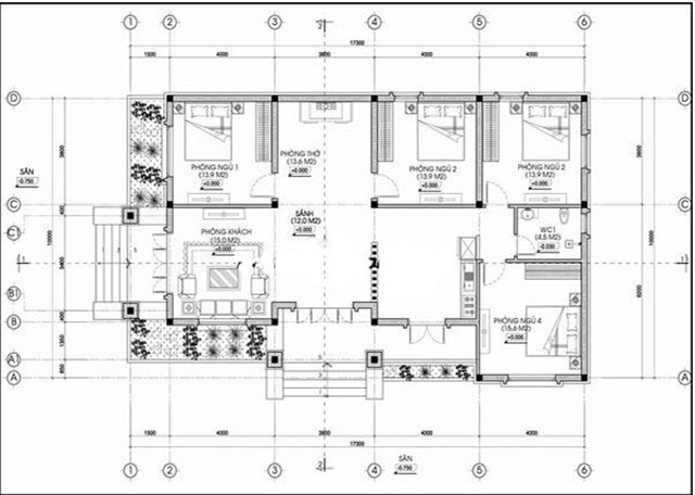
Nhà cấp 4 chữ L với thiết kế 3 phòng ngủ và 1 phòng thờ đang trở thành một lựa chọn phổ biến cho các gia đình hiện nay. Mẫu nhà này không chỉ mang lại không gian sống thoải mái mà còn tiện nghi cho các thành viên trong gia đình. Đặc biệt, việc lựa chọn hướng nhà phù hợp với điều kiện khí hậu địa phương sẽ giúp tối ưu hóa việc đón ánh sáng tự nhiên, mang lại sự ấm áp và thông thoáng cho ngôi nhà.
Chi phí xây dựng cho một ngôi nhà cấp 4 chữ L như vậy thường dao động từ 700 triệu đến hơn 1 tỷ đồng, tùy thuộc vào diện tích và vật liệu hoàn thiện. Các mẫu nhà diện tích 120m² với ba phòng ngủ và một phòng thờ được thiết kế hiện đại không chỉ đảm bảo công năng mà còn nâng cao tính thẩm mỹ cho ngôi nhà, tạo ra không gian sống lý tưởng cho cả gia đình.
Đối với những gia đình đông thành viên, mẫu nhà cấp 4 nông thôn chữ L lại là lựa chọn hoàn hảo với cấu trúc đơn giản, nhưng vẫn hiện đại và đầy đủ tiện nghi. Bên cạnh đó, những mẫu nhà mái thái hay mái bằng cũng đều được ưa chuộng, mang đến nhiều sự lựa chọn phù hợp với sở thích và nhu cầu của các chủ đầu tư.

Nhà cấp 4 chữ L mái bằng là một lựa chọn lý tưởng cho những gia đình nông thôn muốn tìm kiếm sự kết hợp giữa tiết kiệm chi phí và tính thẩm mỹ hiện đại. Với diện tích 160m2 và chi phí thi công khoảng 1,2 tỷ VNĐ, mẫu nhà này mang đến không gian sống tiện nghi, gần gũi với thiên nhiên.
Ngoại thất của ngôi nhà được thiết kế đơn giản nhưng vẫn nổi bật nhờ sự thanh lịch và hiện đại. Kiểu dáng chữ L không chỉ tạo ra nhiều góc cạnh độc đáo mà còn giúp tối ưu hóa không gian, tạo ra những khu vực lý tưởng cho hoạt động sinh hoạt gia đình và vui chơi.
Bên cạnh đó, không gian sân vườn rộng rãi cũng góp phần mang lại sự thoáng đãng, tươi mát cho ngôi nhà. Mẫu nhà cấp 4 chữ L cũng phù hợp với nhu cầu sinh hoạt của người dân Việt Nam, vừa thể hiện được phong cách hiện đại lại vẫn gìn giữ được nét truyền thống vốn có.
Chắc chắn rằng, với mẫu thiết kế này, gia đình bạn không chỉ có một mái ấm đẹp mà còn có một không gian để tận hưởng cuộc sống yên bình ở nông thôn.

Nhà cấp 4 chữ L mái tôn đã trở thành lựa chọn phổ biến cho nhiều gia đình, đặc biệt ở nông thôn. Với thiết kế một tầng, kiểu dáng chữ L mang đến sự nổi bật với nhiều góc cạnh và không gian sống đa dạng. Điều này không chỉ tạo ra nét thẩm mỹ riêng mà còn tăng cường công năng của ngôi nhà, phù hợp với nhu cầu sinh hoạt hàng ngày của gia đình Việt.
Mái tôn là một trong những điểm nhấn khiến mẫu nhà này trở nên hấp dẫn. Dòng vật liệu tôn nhựa hoặc tôn ngói nhựa, được ưa chuộng hiện nay, không những nhẹ mà còn có khả năng bền bỉ, chịu được thời tiết khắc nghiệt. Những mẫu nhà cấp 4 dạng này thường nổi bật với phong cách châu Âu, mang lại vẻ đẹp sang trọng, tinh tế nhưng vẫn rất tối giản.
Một điểm cộng lớn nữa là giá thành hợp lý, giúp gia chủ tiết kiệm được chi phí. Sự linh hoạt trong thiết kế khiến nhà chữ L mái tôn không chỉ đáp ứng nhu cầu về không gian sống mà còn mang lại sự hài lòng cho những ai yêu thích sự hiện đại và tiện nghi.

Cuối cùng, hy vọng rằng những thông tin và mẫu bản vẽ nhà cấp 4 chữ L mà chúng ta đã khám phá sẽ giúp bạn có thêm những ý tưởng thiết thực cho không gian sống của mình. Bất kỳ lựa chọn nào cũng mang trong mình vẻ đẹp riêng, từ những ngôi nhà 100m2 ấm cúng với hai phòng ngủ đến những mẫu đơn giản nhưng gần gũi ở nông thôn. Bạn hoàn toàn có thể tạo ra một tổ ấm thật sự, nơi không chỉ là chốn dừng chân mà còn là nơi chứa đựng bao kỷ niệm đẹp. Hãy để ngôi nhà của bạn là nơi thể hiện cá tính và phong cách sống của chính bạn!