Physical Address
304 North Cardinal St.
Dorchester Center, MA 02124
Physical Address
304 North Cardinal St.
Dorchester Center, MA 02124
Khi bắt tay vào việc thiết kế bếp, nhiều người trong chúng ta thường chỉ chú trọng đến màu sắc hay kiểu dáng mà quên đi một yếu tố quan trọng không kém: kích thước và chiều cao mặt bếp. Thật sự, chiều cao và kích thước bếp không chỉ ảnh hưởng đến tính thẩm mỹ mà còn là yếu tố quyết định đến tính tiện dụng và phong thủy của không gian nấu nướng. Trong bài viết hôm nay, chúng ta sẽ cùng khám phá một số tiêu chuẩn quan trọng về chiều cao mặt bếp, kích thước bếp theo phong thủy cũng như cách ứng dụng thước Lỗ Ban để tối ưu hóa không gian bếp của bạn. Hãy cùng theo dõi để biến gian bếp của mình không chỉ đẹp mắt mà còn lý tưởng cho sự ấm áp và thuận lợi trong các bữa ăn gia đình nhé!
Chiều cao mặt bếp tiêu chuẩn là một yếu tố rất quan trọng trong thiết kế không gian bếp, đặc biệt là cho người Việt. Theo quy định, chiều cao bàn bếp thường dao động từ 82 đến 86 cm, tính từ mặt sàn đến bề mặt bàn. Với chiều cao này, người sử dụng có thể thoải mái thao tác mà không phải cúi xuống hay với tay quá mức.
Điều thú vị là, với chiều cao trung bình của người Việt Nam, khoảng 1m70 cho nam và 1m60 cho nữ, chiều cao 85 cm là sự lựa chọn hợp lý. Hơn nữa, nếu bạn lắp thêm máy rửa bát, việc tăng thêm độ cao lên 90 cm sẽ giúp tạo ra không gian thoải mái hơn cho các hoạt động nấu nướng.
Ngoài chiều cao, chiều sâu mặt bếp cũng cần được lưu ý, thông thường khoảng 55-62 cm sẽ giúp tối ưu hóa không gian làm việc. Việc lựa chọn kích thước phù hợp không chỉ giúp mang lại tiện ích mà còn góp phần tạo nên vẻ đẹp thẩm mỹ cho gian bếp của gia đình.

Chiều cao bàn bếp là một yếu tố cực kỳ quan trọng trong thiết kế không gian bếp, ảnh hưởng không nhỏ đến sự thoải mái khi nấu nướng. Theo các chuyên gia, chiều cao lý tưởng tính từ mặt sàn lên tới mặt bàn bếp nên nằm trong khoảng 82 đến 85 cm. Điều này giúp người sử dụng dễ dàng thao tác mà không bị đau lưng hay mỏi cánh tay.
Bên cạnh đó, thước Lỗ Ban cũng hỗ trợ chúng ta xác định những kích thước đẹp và hài hòa cho không gian bếp. Đối với chiều cao bàn bếp, nó thường dao động từ 81 cm đến 86 cm, đây là khoảng cách lý tưởng cho những ai có chiều cao từ 1m50 đến 1m60.
Ngoài chiều cao, chiều rộng của bàn bếp cũng không kém phần quan trọng. Nó phải được thiết kế trong khoảng từ 38 cm đến 70 cm, tùy thuộc vào kích thước không gian bếp. Việc đảm bảo khoảng cách hợp lý giữa tủ bếp và bàn bếp, khoảng 60 đến 65 cm, cũng rất quan trọng để tránh cảm giác chật chội khi nấu ăn.
Một không gian bếp được thiết kế hợp lý không chỉ tạo điều kiện thuận tiện cho việc nấu nướng mà còn mang lại cảm giác thoải mái, vui vẻ cho gia đình. Hãy nhớ rằng, một sự bố trí hợp phong thủy sẽ giúp cho không gian sống của bạn thêm phần thoải mái và ấm cúng hơn.

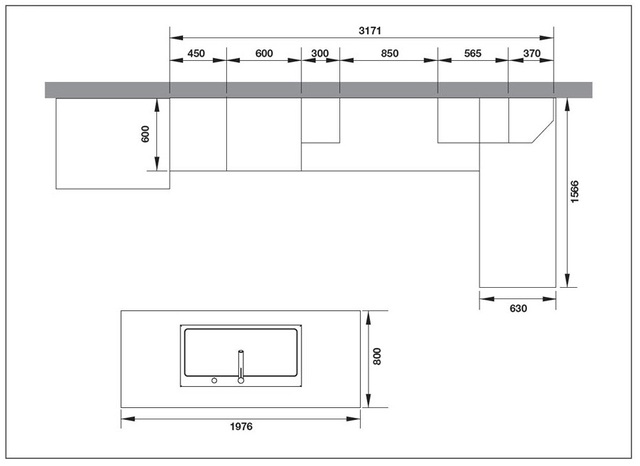
Khi thiết kế bếp chữ L theo phong thủy, kích thước là yếu tố rất quan trọng, không chỉ ảnh hưởng đến sự tiện lợi mà còn ảnh hưởng đến tài lộc của gia đình. Đầu tiên, chiều cao từ mặt sàn nhà đến mặt bếp nên được giữ trong khoảng từ 81 – 86 cm để đảm bảo sự thoải mái khi sử dụng. Chiều rộng mặt bàn bếp lý tưởng từ 60 cm trở lên, mang lại không gian rộng rãi cho việc nấu nướng.
Đối với tủ bếp chữ L, kích thước tiêu chuẩn thường thấy là chiều cao từ 80 cm đến 90 cm, chiều sâu từ 45 cm đến 50 cm. Đặc biệt, cạnh ngắn của tủ bếp nên dài tối thiểu 1,5 m, trong khi cạnh dài có thể kéo dài từ 3 đến 3,5 m để tạo nên sự cân đối. Với bếp nhỏ dưới 10m², chiều dài tủ có thể thu gọn còn 1.8m x 1.2m nhưng vẫn bảo đảm đủ chức năng cần thiết.
Việc bố trí không gian bếp một cách hợp lý sẽ giúp không chỉ gia đình bạn có không gian sống thoải mái mà còn mang lại cảm giác ấm áp, gần gũi mỗi khi vào bếp.

Khi chọn kích thước mặt đá bếp, ngoài việc đảm bảo tính thẩm mỹ và công năng, yếu tố phong thủy cũng rất quan trọng. Theo tiêu chuẩn, chiều sâu mặt đá bếp nên từ 55 đến 60cm, trong khi chiều dài lý tưởng là từ 150 đến 210cm. Đối với chiều cao, khoảng 81 đến 86cm được cho là hợp lý, tạo điều kiện tốt cho tài lộc và may mắn trong gia đình.
Điểm đặc biệt của kích thước măt đá bếp theo phong thủy là chiều sâu khoảng 60cm đến 62cm. Nếu vượt quá kích thước này, mặt bếp có thể rơi vào cung Ly Hương, điều này không tốt cho không gian bếp và tài khí. Với chiều dài, gia đình có thể chọn kích thước tối đa là 320cm nhưng nên chú ý đến sự hài hòa với tổng thể không gian.
Độ dày mặt đá cũng là một yếu tố cần xem xét. Đối với đá nhân tạo như VICOSTONE, độ dày tiêu chuẩn khoảng 18mm sẽ mang lại sự bền bỉ và tính thẩm mỹ cao cho bếp. Kích thước mặt bếp hình chữ nhật phổ biến từ 600x360mm đến 750x480mm, không chỉ mang lại sự thoải mái khi sử dụng mà còn giúp thu hút tài lộc cho gia đình.

Khi thiết kế một căn bếp chữ L, việc chú trọng vào kích thước bàn bếp là rất quan trọng để đảm bảo sự thoải mái và tiện ích cho người sử dụng. Kích thước tiêu chuẩn cho mặt bàn bếp thường dao động từ 60 đến 65 cm, giúp dễ dàng thao tác mà không gây mỏi lưng. Độ cao lý tưởng từ mặt đất đến mặt bàn bếp là từ 81 đến 86 cm, phù hợp với chiều cao trung bình của người Việt.
Đối với chiều cao tủ bếp, tổng chiều cao từ mặt đất đến phào tủ trên thường vào khoảng 220 đến 225 cm nhằm tạo ra không gian rộng rãi. Ngoài ra, khoảng cách giữa phần đáy tủ bếp dưới và mặt bàn cần được lưu ý để tránh tình trạng làm khó khăn trong việc di chuyển hay thao tác khi nấu nướng.
Nếu bạn muốn thêm một bàn đảo bếp, chiều cao của bàn đảo cũng nên đồng bộ với chiều cao của tủ bếp dưới, và chiều rộng tối thiểu cũng nên từ 60 cm. Những kích thước này không chỉ mang lại sự tiện lợi mà còn làm cho không gian bếp trở nên hài hòa hơn.

Khi thiết kế bếp theo phong thủy, kích thước là yếu tố không thể bỏ qua. Thông thường, chiều sâu của bếp nấu tiêu chuẩn dao động từ 40 đến 85 cm, tùy thuộc vào không gian và nhu cầu sử dụng. Đặc biệt, nếu người sử dụng là nam giới, chiều cao của bếp cũng nên cân nhắc để phù hợp với tầm tay.
Mặt bếp vuông thường có kích thước lý tưởng từ 580x510mm đến 600x520mm. Những số đo này không chỉ đảm bảo tính thẩm mỹ mà còn mang lại may mắn và thịnh vượng cho gia đình. Bên cạnh đó, chiều rộng bàn bếp cũng rất quan trọng. Theo phong thủy, chiều rộng phổ biến dao động từ 48-50cm hoặc 55-62cm, với kích thước tối thiểu là 48cm.
Tủ bếp cũng cần có kích thước hợp lý để phát huy công năng. Chiều cao tủ bếp dưới thường từ 81 đến 86cm, trong khi tủ bếp trên cao khoảng 80cm. Đối với tủ bếp chữ L, mỗi cạnh nên nằm trong khoảng từ 1.5 đến 2m, cùng với chiều rộng mặt bàn lý tưởng là 60cm.
Khi chọn kích thước cho bếp, đừng quên tham khảo các cung đẹp trên thước Lỗ Ban như Tài vượng, Phúc lộc, hay Thiên đức để có được không gian bếp vừa tiện nghi lại vừa mang lại vận khí tốt cho gia đình.

Chiều rộng mặt bếp theo phong thủy là yếu tố rất quan trọng mà gia chủ cần lưu ý khi thiết kế không gian bếp của mình. Kích thước lý tưởng cho chiều rộng thường nằm trong khoảng 55-60 cm, không chỉ tạo cảm giác thoải mái khi nấu nướng mà còn mang lại tài lộc cho gia đình. Chiều rộng này giúp không gian bếp trở nên thông thoáng, thuận tiện hơn cho các hoạt động nấu nướng hàng ngày.
Theo các chuyên gia phong thủy, kích thước mặt bếp thông thường nên có độ sâu từ 60cm, vừa đủ để đặt bếp nấu, chậu rửa và các dụng cụ nấu ăn cần thiết. Đặc biệt, chiều cao từ mặt sàn lên mặt bếp lý tưởng nên dao động từ 81 đến 86cm, vừa hợp lý để dễ dàng sử dụng mà vẫn đảm bảo yếu tố thẩm mỹ cho gian bếp.
Việc lựa chọn kích thước bếp hợp phong thủy không chỉ dựa vào tính tiện dụng mà còn ảnh hưởng đến tài vận và may mắn cho gia đình. Một không gian bếp được thiết kế hợp lý, đầy đủ công năng sẽ góp phần mang lại sự hài hòa và phúc lộc cho gia chủ.

Cuối cùng, việc lựa chọn và thiết kế bếp không chỉ đơn thuần là vấn đề về kích thước hay chiều cao mà còn phải hài hòa với không gian sống, phong thủy và cảm xúc gia đình. Bếp chính là nơi hội tụ yêu thương, nơi mỗi bữa ăn đều có ý nghĩa. Bạn hãy ghi nhớ những tiêu chuẩn và kích thước phù hợp để tạo nên một bếp ấm cúng, thuận tiện cho việc nấu nướng và giao lưu. Hy vọng rằng bài viết này đã mang đến cho bạn những thông tin hữu ích trong quá trình thiết kế bếp, giúp mỗi khoảnh khắc bên bếp trở nên trọn vẹn hơn. Hãy thỏa sức sáng tạo không gian bếp của bạn!