Physical Address
304 North Cardinal St.
Dorchester Center, MA 02124
Physical Address
304 North Cardinal St.
Dorchester Center, MA 02124

Khi nói đến thiết kế nội thất, trần nhà không chỉ đơn thuần là phần trên cùng của một căn phòng mà còn có thể là điểm nhấn nghệ thuật, góp phần tạo nên sự hài hòa và tinh tế cho không gian sống. Trong bài viết này, chúng ta sẽ cùng khám phá các khía cạnh liên quan đến bản vẽ trần thạch cao – một giải pháp không thể thiếu trong việc làm đẹp và tối ưu hóa kiến trúc. Từ những bản vẽ đơn giản cho đến chi tiết kỹ thuật phức tạp, cùng những bí quyết hữu ích để bạn có thể dễ dàng đọc và hiểu các bản vẽ này. Hãy cùng bắt đầu hành trình tìm hiểu nhé!
Bản vẽ trần thạch cao đang ngày càng trở nên phổ biến trong thiết kế kiến trúc hiện đại. Những mẫu bản vẽ này thường được tạo ra qua phần mềm AutoCAD nhờ tính linh hoạt và dễ sử dụng. Trong thư viện AutoCAD mà mình muốn chia sẻ, bạn sẽ tìm thấy hơn 165 chi tiết cấu tạo của trần thạch cao, từ khung xương, dây treo cho đến các tấm trần.
Trần thạch cao không chỉ đẹp mà còn mang lại hiệu ứng thị giác ấn tượng, thể hiện sự tinh tế trong từng chi tiết. Những cấu tạo như trần giật cấp, trần chìm hay trần thả đều có những ý nghĩa và ứng dụng riêng. Người dùng có thể tải xuống file bản vẽ từ các liên kết mà mình cung cấp để tham khảo và sử dụng trong các dự án của mình.
Ngoài ra, bản vẽ chi tiết còn giúp các kiến trúc sư, kỹ sư và sinh viên nắm vững được kiến thức về kết cấu và thi công, một yếu tố quan trọng trong lĩnh vực xây dựng. Khám phá và học hỏi từ những bản vẽ này là một cách hữu ích để nâng cao kỹ năng chuyên môn của bạn.

Trần thạch cao giật cấp, thuộc loại trần chìm, nổi bật với cấu trúc phức tạp hơn trần phẳng thông thường. Với kiểu dáng đa dạng, loại trần này không chỉ tạo ra không gian ấn tượng mà còn góp phần nâng cao tính thẩm mỹ cho ngôi nhà. Vẻ đẹp sang trọng và hiện đại của trần giật cấp khiến nó trở thành một lựa chọn hàng đầu trong thiết kế nội thất.
Khi tham khảo bản vẽ chi tiết, chủ nhà hoặc đơn vị thi công có thể tính toán và báo giá chính xác cho công trình. Bản vẽ không chỉ mô tả cấu tạo của trần khung chìm mà còn cung cấp thông tin về khoảng cách giật cấp. Quá trình lắp đặt cũng được chia thành nhiều bước rõ ràng, từ việc xác định cao độ trần cho đến lắp dựng phần giật cấp.
Khoảng cách giật cấp được quy định cụ thể, với trần kín nằm trong khoảng 6-8 cm và trần hở là 14 cm. Điều này giúp các nhà thiết kế và thi công dễ dàng có cái nhìn tổng thể và hoàn thiện hơn cho không gian nội thất. Trần thạch cao giật cấp thật sự là một điểm nhấn không thể thiếu cho ngôi nhà của bạn.

Bản vẽ chi tiết trần thạch cao là một tài liệu rất hữu ích cho các kỹ sư, kiến trúc sư và sinh viên trong lĩnh vực xây dựng. Với 165 chi tiết cấu tạo được thiết kế trong file AutoCAD, các bạn có thể dễ dàng tham khảo và ứng dụng vào dự án của mình. Từ trần khung nổi, giật cấp đến trần thả, thư viện này cung cấp rất nhiều mẫu mã đa dạng và phong phú.
Khi thi công trần thạch cao, tấm thạch cao thường được lắp đặt phía dưới khung xương và liên kết với nhau bằng đinh vít. Điều này không chỉ giúp đảm bảo độ bền cho công trình mà còn giúp tiết kiệm thời gian thi công. Những bản vẽ này còn rất dễ sử dụng, phù hợp cho cả những người mới bắt đầu.
Nếu bạn muốn tải bản vẽ chi tiết trần thạch cao miễn phí, có thể truy cập vào các liên kết đã được chia sẻ. Những mẫu thiết kế này không chỉ mang tính thực tiễn cao mà còn giúp bạn sáng tạo hơn trong công việc. Hãy cùng khám phá và áp dụng những bản vẽ này vào công trình của bạn để mang lại sự hoàn hảo nhất!

Chào các bạn, hôm nay mình xin chia sẻ đến mọi người một tài liệu rất hữu ích dành cho những ai làm trong lĩnh vực xây dựng và thiết kế nội thất. Đó chính là file Autocad với 165 chi tiết cấu tạo trần thạch cao. Tài liệu này chắc chắn sẽ là nguồn tham khảo quý giá cho các bạn trong việc thiết kế và thi công trần thạch cao.
File này không chỉ có các bản vẽ chi tiết trần thông dụng mà còn được tổ chức một cách khoa học, giúp người dùng dễ dàng tìm kiếm và áp dụng vào dự án của mình. Các chi tiết từ khung giàn, đầu nối đến ốc vít đều được thể hiện rõ ràng, chính xác. Điều này rất quan trọng để đảm bảo rằng trần thạch cao được thi công hoàn chỉnh và đẹp nhất có thể.
Nếu bạn đang tìm kiếm một nguồn tài liệu chất lượng để nâng cao chuyên môn, hãy tải về và tham khảo file này. Mình tin rằng nó sẽ giúp ích rất nhiều trong công việc thiết kế của bạn. Hãy cùng nhau chia sẻ và học hỏi nhé!

Trần thạch cao giật cấp đang trở thành một trong những lựa chọn phổ biến trong thiết kế nội thất hiện đại. Với cấu trúc khung xương vững chắc, các tấm thạch cao được ghép lại thành từng lớp một cách nghệ thuật, tạo nên một diện mạo ấn tượng cho không gian. Tuy nhiên, để đảm bảo độ bền và không bị nứt, võng, quá trình thi công cần phải tuân thủ những nguyên tắc nhất định.
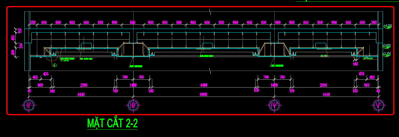
Mặt cắt trần thạch cao là bản vẽ chi tiết thể hiện cấu trúc bên trong của hệ thống trần. Nó giúp các kỹ sư, kiến trúc sư hình dung rõ hơn về kết cấu, từ đó có thể đưa ra những điều chỉnh cần thiết. Việc khung xương ở mỗi cấp được treo đồng nhất trên một mặt phẳng là yếu tố then chốt để giữ cho trần luôn phẳng và chắc chắn.
Bên cạnh đó, để tránh tình trạng thạch cao nhanh bị ố vàng, việc bảo trì thường xuyên là rất quan trọng. Hãy chú ý đến các khe hở giữa các tấm và thực hiện việc trét, sơn định kỳ để duy trì tính thẩm mỹ cho không gian sống. Mẫu mã trần thạch cao rất đa dạng, từ cổ điển đến hiện đại, giúp bạn thoải mái lựa chọn phù hợp với nhu cầu và phong cách riêng.
![]()
Trần thạch cao giật cấp ngày càng được yêu thích trong thiết kế nội thất nhờ vào vẻ đẹp và tính năng nổi bật. Đây là loại trần chìm, khác biệt với trần phẳng, với cấu trúc phức tạp tạo nên các khối, các hộp trên bề mặt. Nhờ vậy, trần giật cấp không chỉ mang lại không gian rộng rãi mà còn tạo hiệu ứng hình khối ấn tượng, khiến cho mọi căn phòng trở nên sống động hơn.
Quy trình thi công trần thạch cao giật cấp gồm nhiều bước quan trọng. Đầu tiên, việc chuẩn bị toàn diện là rất cần thiết để đảm bảo mọi thứ sẵn sàng cho quá trình thi công. Sau khi xác định được cao độ, công nhân sẽ tiến hành đánh dấu vị trí lắp đặt. Tiếp theo, họ lắp đặt khung xương chắc chắn, tạo nền tảng vững chãi cho từng lớp tấm thạch cao.
Kích thước của giật cấp cũng có sự đa dạng, với trần thạch cao hở khoảng 14 cm, trong khi trần kín thường dao động từ 6-8 cm. Mỗi mẫu trần giật cấp đều mang lại giá trị thẩm mỹ cao, giúp không gian sống trở nên sang trọng và ấm cúng hơn.

Chào các bạn, hôm nay mình muốn chia sẻ với các bạn một bộ sưu tập file CAD chi tiết về trần thạch cao rất hữu ích. Bộ sưu tập này bao gồm 165 chi tiết cấu tạo, chắc chắn sẽ giúp các bạn trong công việc thiết kế và thi công. Đặc biệt, mặt cắt trần thạch cao giật cấp là một trong những điểm đáng chú ý, nơi mà khung xương ở mỗi cấp được treo đồng nhất trên một mặt phẳng.
Khi sử dụng AutoCAD để thiết kế trần thạch cao, bạn sẽ thấy rằng phần mềm này rất dễ sử dụng và giúp bạn quản lý các bản vẽ một cách hiệu quả. Mẫu trần thạch cao đẹp mắt không chỉ tăng tính thẩm mỹ cho không gian mà còn thể hiện sự chuyên nghiệp trong công trình.
Nếu bạn đang cần tham khảo để thực hiện các dự án của mình, hãy truy cập vào liên kết để tải về bộ file CAD trần thạch cao dành cho nhà mặt phố. Những chi tiết này sẽ là nguồn cảm hứng cho các thiết kế sáng tạo của bạn, và chắc chắn sẽ nâng cao chất lượng công việc của bạn trong lĩnh vực xây dựng.

Hy vọng rằng bài viết này đã cung cấp cho bạn cái nhìn tổng quan và chi tiết về bản vẽ trần thạch cao, từ những khái niệm cơ bản cho đến những thông tin kỹ thuật cụ thể. Việc hiểu rõ các bản vẽ và mặt cắt sẽ giúp bạn không chỉ nắm bắt được quy trình thiết kế mà còn mở ra nhiều ý tưởng sáng tạo cho không gian sống của mình. Đừng quên chú ý đến các kích thước và cách đọc bản vẽ để đảm bảo mọi thứ hoàn hảo nhất. Chúc bạn thành công trong việc tạo dựng những không gian đẹp và ấn tượng với trần thạch cao!